Due to the health concerns created by Coronavirus we are offering personal 1-1 online video walkthough tours where possible.




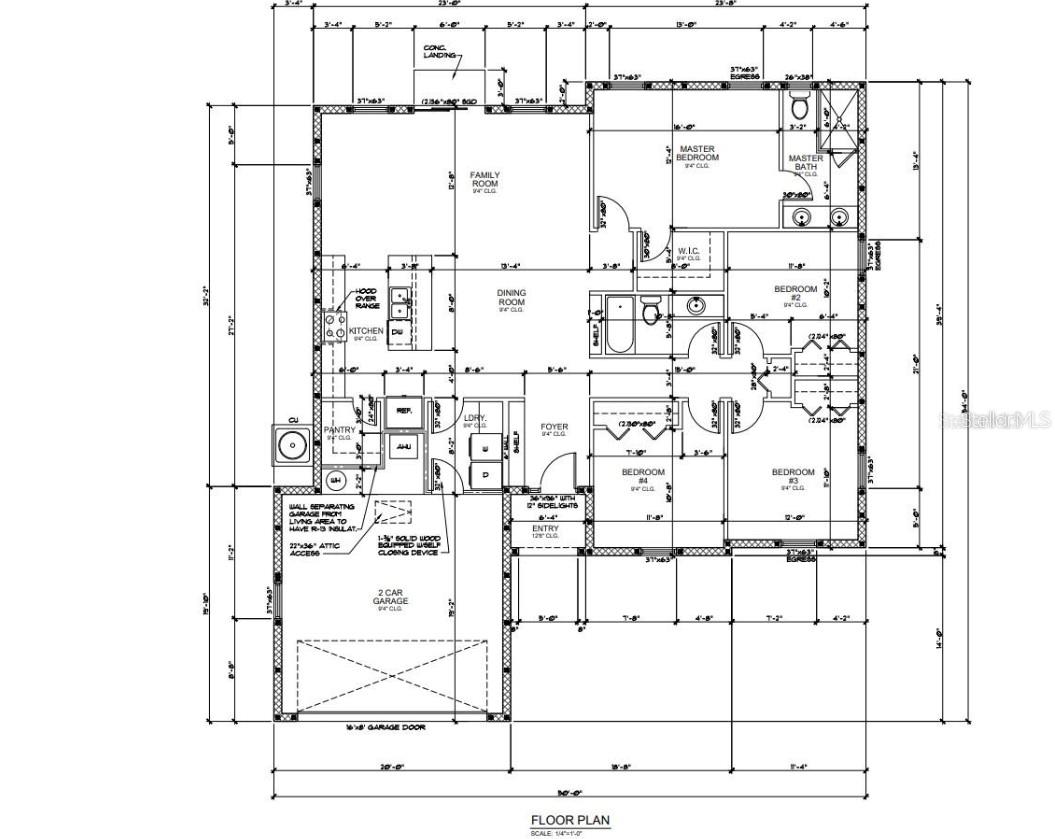
Under Construction. Under Construction. Under Construction. This stunning pre-construction home in Rotonda Sands only 25 minutes from the beach offers 1,664square feet of well-designed living space. Featuring 4 bedrooms, 2 bathrooms, and a 2-car garage, this one-story residence boasts an open floorplan perfect for modern living. The kitchen and bathrooms are adorned with beautiful quartz countertops, complemented by stainless steel appliances and ample cabinetry for all your storage needs. Tile flooring runs throughout the home, adding a sleek and durable touch. The masterbedroom includes a spacious walk-in closet, providing ample storage. The kitchen also features an island with a breakfast bar, ideal for casual dining. Located near beautiful beaches, restaurants, and shopping. Please note that the staged and render pictures are for illustration purposes only. House is under construction. Estimate completion date: 10/01/2025
| 2 months ago | Listing updated with changes from the MLS® | |
| 2 months ago | Listing first seen on site |
Did you know? You can invite friends and family to your search. They can join your search, rate and discuss listings with you.